美国设计外包项目
发布时间:2009/4/14 浏览次数:8197

该项目是我们承担的美国医院施工图设计的绘制外包,按照美方建筑事务所的方案设计及施工设计要求,由我们完成施工图的绘制工作,双方通过基于互联网的有效沟通,按照合同约定完成项目。

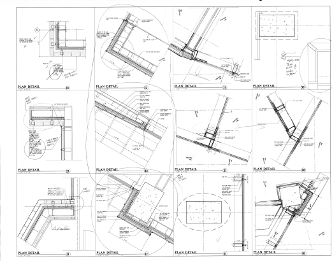
该项目是设计为在旧建筑旁边的扩建项目,同时对旧建筑与新建筑相连的部分进行改造。美国的建筑施工图不同于中国的建筑施工图,在设计中不仅要做非常详细的建筑图,而且包括完整的室内装饰设计。我们利用协同工作的模式,完成二维施工图的绘制,最终完成的图纸,仅建筑专业就超过160张(图幅为42x30英寸,比A0略大)。

 

l         在工作工程中通过电子邮件进行交流,利用FTP进行文件交换。

l         使用ArchiCAD三维建筑设计软件建立的三维数字化模型,与施工图完全对应,作为我们的增值服务一同赠送给客户。作为三维数字化档案。

l         标准墙的三维详细结构与二维详图

 
版权所有 西安迪辅数字科技有限公司
电话:029-68570629 029-81031886 Email:difu2008#gmail.com
地址:西安市高新区高新六路26号密斯楼307